ホーム
売買物件検索
賃貸物件検索
技能実習生・特定技能生向け
会社概要
お問い合わせ
福岡県筑紫野市牛島161-5
A17.筑紫野市牛島センター
●筑紫野市牛島に令和8年8月完成予定 ●県道35号線沿いの約300坪高床倉庫 ●九州自動車道筑紫野ICから約4.4km
No items found.
No items found.
No items found.
No items found.
費用に関する情報
賃料
1488960
円
(消費税135,360円含む)
敷金
3か月
礼金
管理費・共益費
円
なし
初期費用
その他費用
仲介手数料1ヶ月分
その他物件に関する情報
間取り
種別
倉庫
所在地
福岡県筑紫野市牛島161-5
交通
西鉄天神大牟田線朝倉街道駅 1,910m
占有面積
㎡
(約
坪)
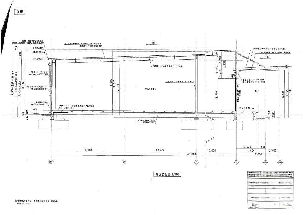
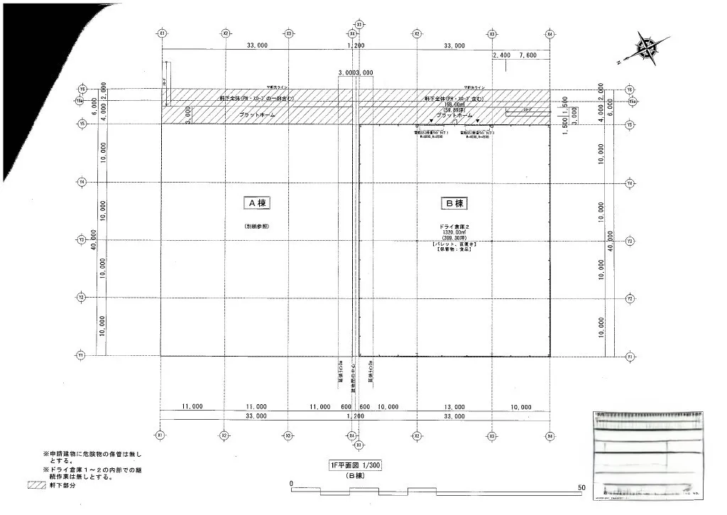
倉庫B棟 1,320㎡ (約399.3坪)
敷地面積
㎡
(約
坪)
実測 3,933.78㎡ (約1,189.68坪)
都市計画・用途地域
市街化調整区域
築年月
2026年8月完成予定
その他面積情報
構造
鉄骨造ガルバリウム鋼板葺平家建
特記事項
契約期間 打ち合わせにて
物件概要
地目:宅地 / 接道状況 北側:筑紫野市道 幅員12m接面46m 西側:県道35号 幅員25.8m接面78.2m / ● 駐車場あり ●新築の高床倉庫 天井高7.5m、事務所別途あり ●九州自動車道 筑紫野IC料金所から約4.4Km 県道35号線沿い
お問い合わせ
CONTACT
名前
必須
名前(ふりがな)
必須
会社名
必須
所属部署
必須
メールアドレス
必須
電話番号
必須
物件ID
必須
お問い合わせ種類
必須
選択してください
資料請求
内見のご依頼
その他ご相談
お問い合わせ内容
必須
お問い合わせありがとうございます。
ご入力いただきました内容を確認の上、担当者より折り返しご連絡いたします。
通常、2~3営業日以内に返信させていただいておりますので、今しばらくお待ちくださいませ。
お急ぎの場合や、数日経っても連絡がない場合には、お手数ですが再度ご連絡いただくか、お電話にてご連絡くださいますようお願い申し上げます。
引き続きどうぞよろしくお願いいたします。
Oops! Something went wrong while submitting the form.